HILLCOURT
Designed for Kochi's ambitious young professionals, HILLCOURT offers luxurious 1 & 2 BHK service apartments with a perfect balance of comfort and sophistication. Located near Infopark and wellness centers, we connect you to professional growth, global networking, and a healthy lifestyle.
44,977
sq.ft Building Area
27.3
Cents of Land
24
Months Completion
1KM
From Infopark
OURkey amenities
Elevated Urban Living
Each apartment is elegantly designed and furnished with premium, modern amenities for ultimate comfort.
Recharge, Rewind, Reconnect
Recharge, Rewind, Reconnect A rooftop swimming pool, well-equipped gym, rooftop lounge, or entertainment room to unwind and socialize.
Your LifeStyle Simplified
Essential amenities like air-conditioned rooms, lift, water purifier, laundry service and a backup generator ensuring uninterrupted comfort.
Innovate and Collaborate
Dedicated areas for focused work or group projects.
Designed for Tomorrow
Solar panels contribute to renewable energy use, while a waste incinerator ensures efficient waste disposal.
OURin-room amenities
Apartment Gallery
2 BHK Apartment Floor Plan
Built Up Area: 1308 ft² | Carpet Area: 622 ft²
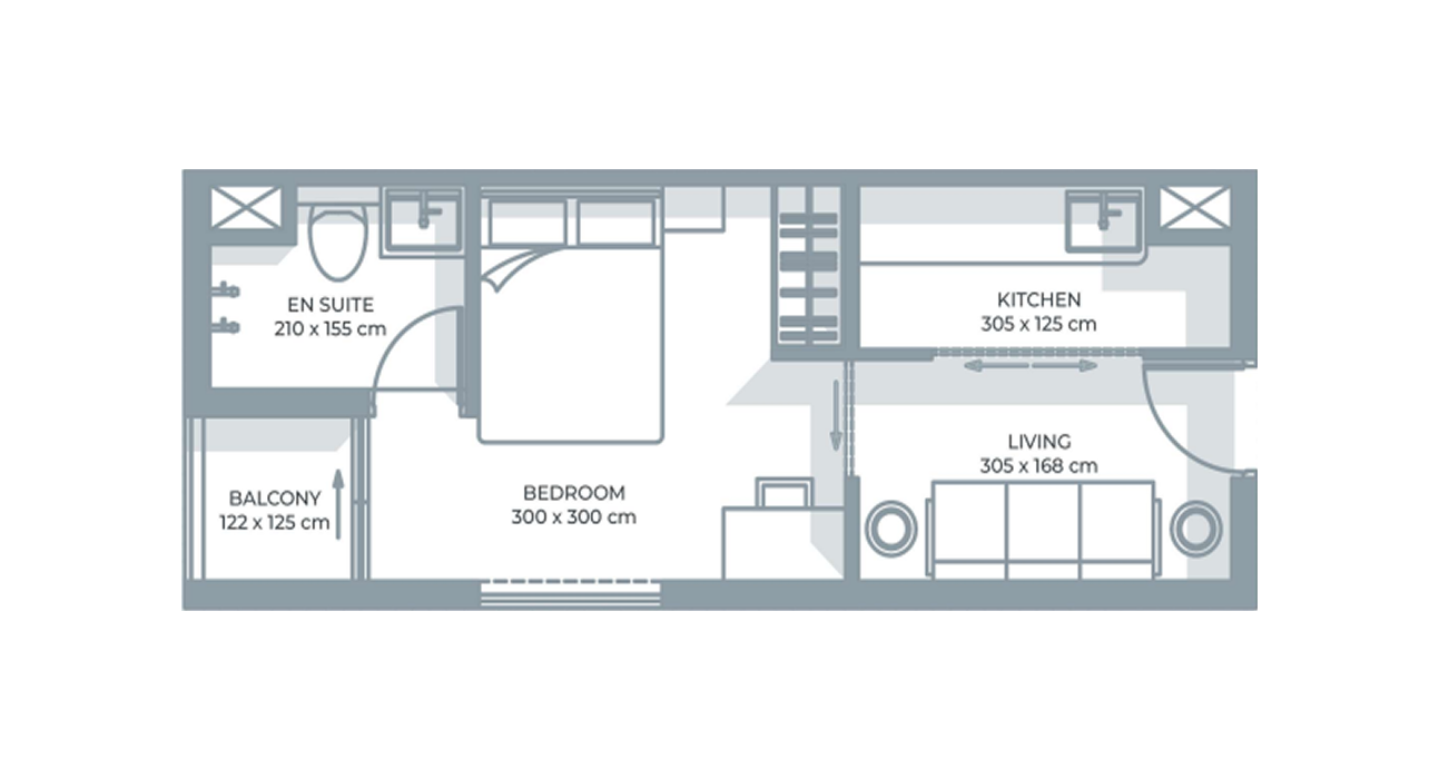
1 BHK Apartment Floor Plan
Built Up Area: 654 ft² | Carpet Area: 311 ft²




















